【今年最後の完成見学会】
■日程 12/14(土)
■時間 10:00~16:00
■場所 横浜市戸塚区
今回は完成前のお家をお借りして
見学会を開催させていただけることになりました!
今回のお家を担当させていただいたのは…
菅原・松井コンビ!
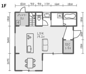
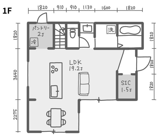
事前に1階の間取りをチラ見せです♪
2階は現地に見に来てくださいね!
土地面積125㎡、延べ床30坪、2面道路!!
3LDK+書斎に収納もたっぷり!
人気のサイズ感なので実際に体感しに来てください♪
【場所】
横浜市戸塚区
舞岡駅徒歩16分
※予約完了後、詳しい地図をお送りします。
(お車は駅近くのパーキングをご利用ください)
【日程】
2024/12/14(土)
【時間】
10:00~16:00
【内容】
1組30分の見学
設計士、コーディネーターが建物内をご案内させていただきます。
【注意事項】
・お引渡し前のお家なので、お手洗い・空調設備が使用できません。予めご了承ください。
・オーナー様のご自宅ですので物を壊したり汚したりしないよう、ご協力をお願いいたします。
・ 撮影はご自身の記録として写真撮影は歓迎ですが、他の来場者様やSNS等への配慮をお願いいたします。
【予約方法】
エコモの「自然素材」と「設計力」を実際に体感しに来てください♪
皆様にお会いできることを楽しみにしております。
今までの見学会に参加したかったけど行けなかった。。。
という方に!!
お家で見れるオーナー様宅ルームツアー
「インスタライブ」はこちら↓
https://www.instagram.com/ecomo.architect/reels/?hl=ja











