~概要~
【日程】
11/22(土)
【時間】
10:30~16:00
【場所】
藤沢市内
辻堂駅バス約10分
※予約完了後、詳しい地図をお送りします
【内容】
1組1時間の見学
設計士、コーディネーターが建物内をご案内させていただきます。
~こんな方におすすめ!~
☆ 湘南エリアで3階建てを検討している方
☆いろんな種類の無垢材を楽しんでいただけます
☆お引渡しから2年経っているので経年変化を体感してください
☆ 設計士と「妥協しないお家づくり」を実現したい方
~お家の見どころ~
①設計士と創り上げた海外の古いアパートメントのような雰囲気

ハワイへの家族旅行をきっかけに、海の近くに住むことを考えはじめたお客様。東京から湘南への移住されました。
②2面採光で明るく開放感のあるリビングコーナー。

バルコニーは設けず、窓前にカウンターを造作。ベンチとしても植物などを置くスペースとしても収納としても使える。
③ちらりと見えるパントリー

キッチン奥にパントリーを設けて、冷蔵庫や家電類を収納。ちらりと見えるパントリー内の壁も、家全体のアクセントで使っているブルーにカラーリング。
④オリジナルの造作洗面

使いやすさ、デザインどちらもこだわった造作洗面です。たくさんの工夫がされているので現地でご確認ください♪
⑤健康で快適な自然素材

漆喰や珪藻土のおかげで、湘南の湿気に負けない快適な室内環境が保たれます。
化学物質を使用しないため、お子様やペットの健康も安心です。
この寒い時期だからこそ、自然素材の心地よさが体験できますよ!
地球の未来も考えた環境配慮型の素材をもっと詳しく知りたい方はこちら
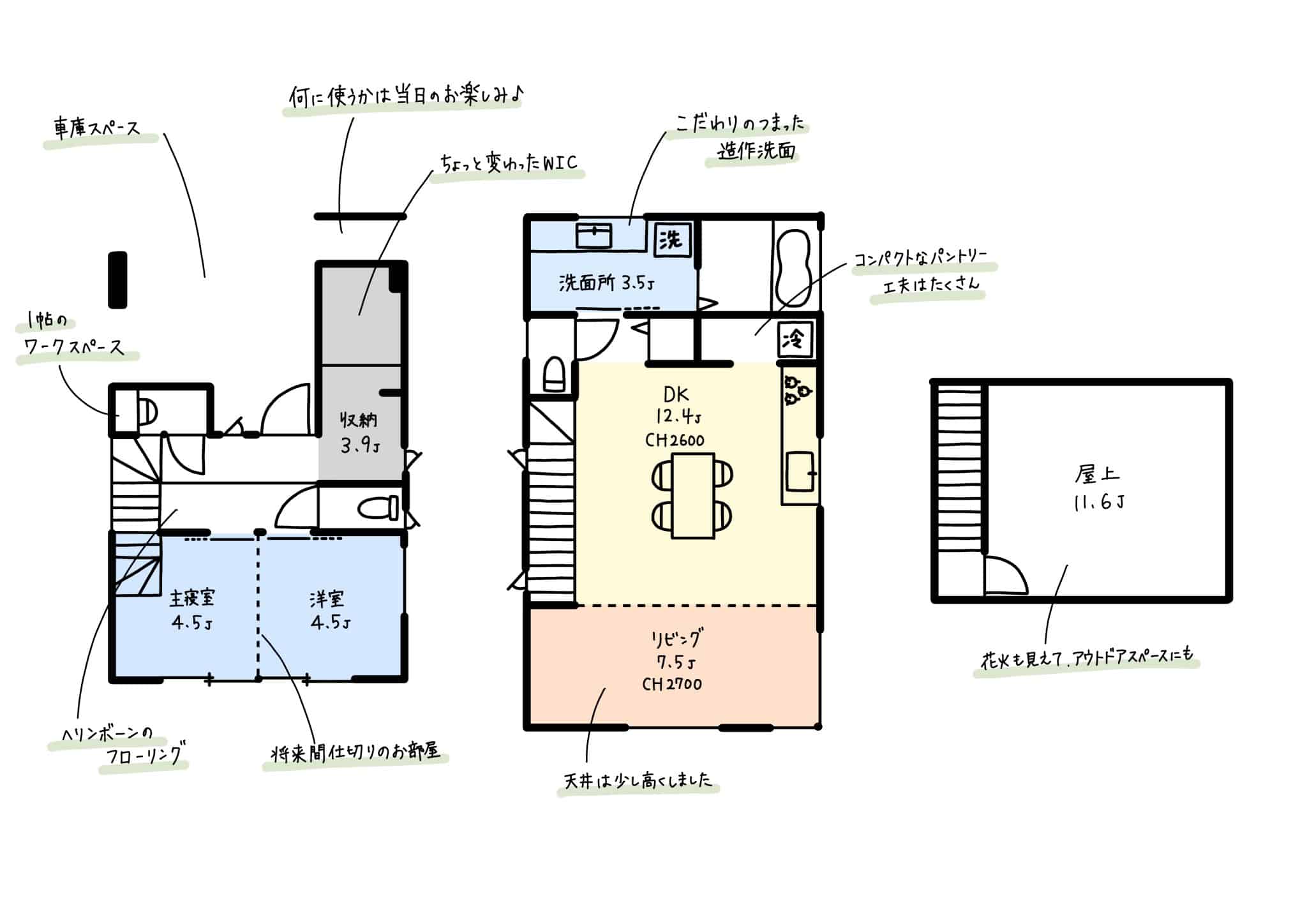
~間取り図で見どころをもっと見る~
~ecomoが選ばれる理由~
設計士と一緒にお家づくりをされたお客様の声もぜひご覧ください。
湘南 注文住宅のエコモの「設計力」と「自然素材」を実際に体感しに来てください♪
皆様にお会いできることを楽しみにしております。
















