【平塚市西真土3丁目戸建】
↑ 募集締め切りました。
ecomoの不動産部より 平成29年9月築
ecomo施工自然素材の家 貸戸建住宅の ご紹介です。
○賃 貸 条 件 : 賃料 120,000円 礼金1ヶ月 敷金1ヶ月 ←値下げしました
○物件所在地 : 平塚市西真土3丁目
○交 通 : JR東海道線「平塚駅」北口バス12分「市場前」バス停下車徒歩3分
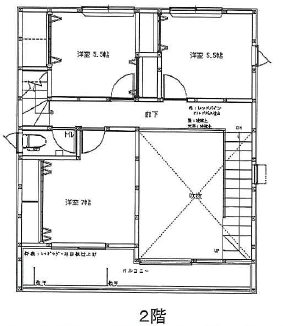
○建 物 : 木造合金メッキ鋼板ふき2階建 床面積96.05㎡
○間 取 内 訳 : 3LDK+屋上(LDK25帖・洋室5.5帖×2室、洋室7帖)
○築 年 月 : 2017年9月
○契 約 期 間 : 3年(定期借家) ☆大塚山テラス分譲地内
○駐 車 場 : 有(3台可) ☆南道路・陽当たり良好
○現 況 : 住居中(入居日・相談)
○そ の 他 : 保険2年要
【充実設備仕様】
・外壁石灰漆喰 ・屋根ガルバニウム鋼板 ・居室複層ガラス
・床無垢レッドパイン(アルドボス仕上げ) ・システムキッチン(食器洗い乾燥機付)
・システムバスルーム(1616サイズ) ・洗面台(シャワー付・3面鏡) ・トイレ(1階・2階)
・ペレットストーブ(SAIKAI SS-5)
お問い合わせ、内見の際は 下記までご連絡下さい。
0120-75-7355
不動産担当 手塚
お電話お待ちしております!!












